

banneritesti
Vapaat tilat
banneritesti
Vapaat tilat
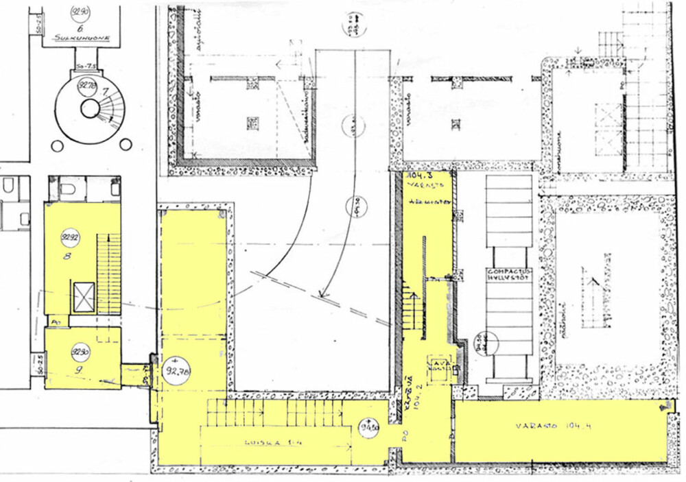
Kauppakatu 21, 150-300m² varasto/arkistotilaa
Osoitteessa Kauppakatu 21 on entinen Suomen Pankin holvitila. Vapaita arkisto- tai varastotiloja löytyy useasta kerroksesta. Tiloihin kuljetaan kapeahkon oven kautta. Vuokrapyyntö on 6-10 €/m2/kk. Kyseessä on vss-tila, jossa on useita eri kokoisia huoneita. Tavarahissi vie kerroksesta toiseen.



