

banneritesti
Vapaat tilat
banneritesti
Vapaat tilat
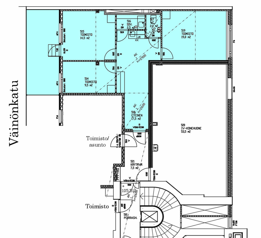
Väinönkatu 30, 66,5m² toimisto
Viidennessä kerroksessa sijaitseva läpi huoneiston ulottuva toimistotila. Rappukäytävästä oikealla, oven avauksen jälkeen erillinen käytävä/aula, josta on käynti itse tilaan. Sisään käytäessä eteinen, vasemmalla kaksi toimistohuonetta (9,5 sekä 14,5m2) ja oikealla 19m2 neuvottelutila. Keskellä on toimistokeittiö, wc- sekä siivouskomero. 14,5m2 toimistotilasta käynti tilavalle parvekkeelle. Näkymä Väinönkadulle sekä Jyväskylän Harjulle.
Samassa kerroksessa porrasaulan toisella puolella sijaitsee Kauppalaisseuran saunallinen kokoustila 25 hengelle. Tilaa voi helposti varata omille suuremmille kokouksille saunatilan varauskalenterista.

