

banneritesti
Vapaat tilat
banneritesti
Vapaat tilat
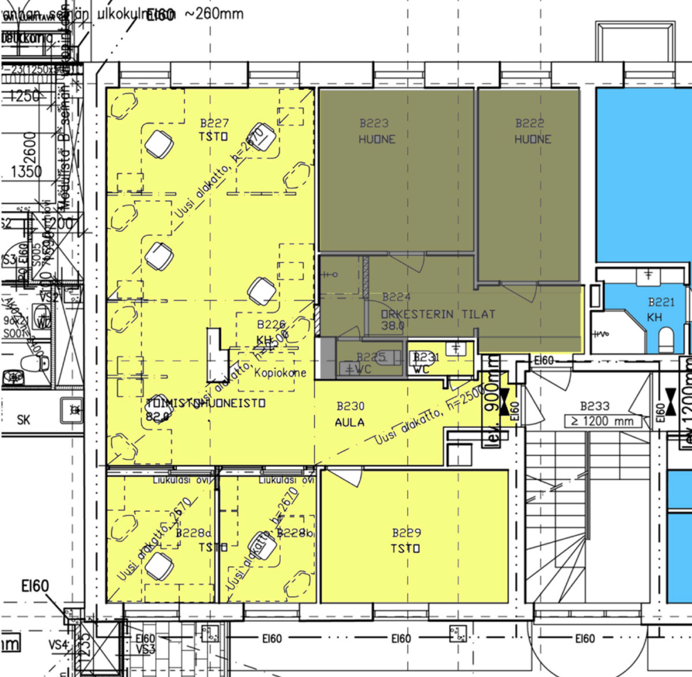
Kauppakatu 35, 82 m² toimistotilaa
Erittäin siistissä kunnossa oleva rauhallinen toimisto aivan kaupungin ytimessä (merkitty pohjakuvassa keltaisella). Sisätilojen kautta kulku hotelli Verson viereen Versonraitille ja kävelykadulle suoraan Jyväskylän ytimeen kompassille. Käynti tilaan on mahdollinen 24/7 oman sisäänkäynnin kautta. Tilasta löytyy minikeittiö, kolme erillistä toimisto/neuvottelutilaa sekä laajempi yhteinen työtila mahdollistamaan sekä omat toimistot että yhteiskäyttöiset tilat.






