

banneritesti
Vapaat tilat
banneritesti
Vapaat tilat
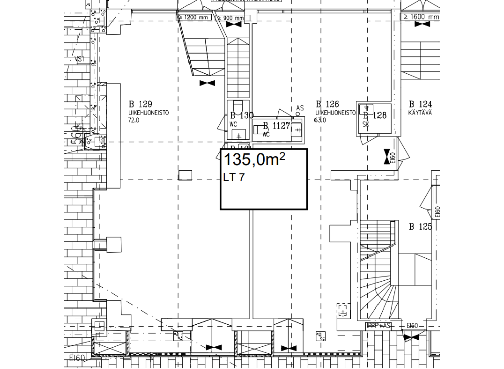
Kauppakatu 35, 135m² myymälätila
1.6. vapautuva liiketila Kauppakeskus Tawastilla, Jyväskylän keskustassa. Liiketila sijaitsee katutasossa, kauppakeskuksen sisällä, Hotelli Versoa vastapäätä. Tilassa on aiemmin toiminut kampaamo-parturi. Liiketila toimii monessa käytössä mm. hyvinvointipalvelualalle, myymäläkäyttöön tai toimistokäyttöön. Tiloista myös oma sisäänkäynti Kauppalaiskujalle/kävelykadulle.
Hyvin ikkuna pinta-alaa käytävälle sekä myös ulos.
Vuokran lisäksi sähkö- ja vesimaksu sekä markkinointimaksu.




