

banneritesti
Vapaat tilat
banneritesti
Vapaat tilat
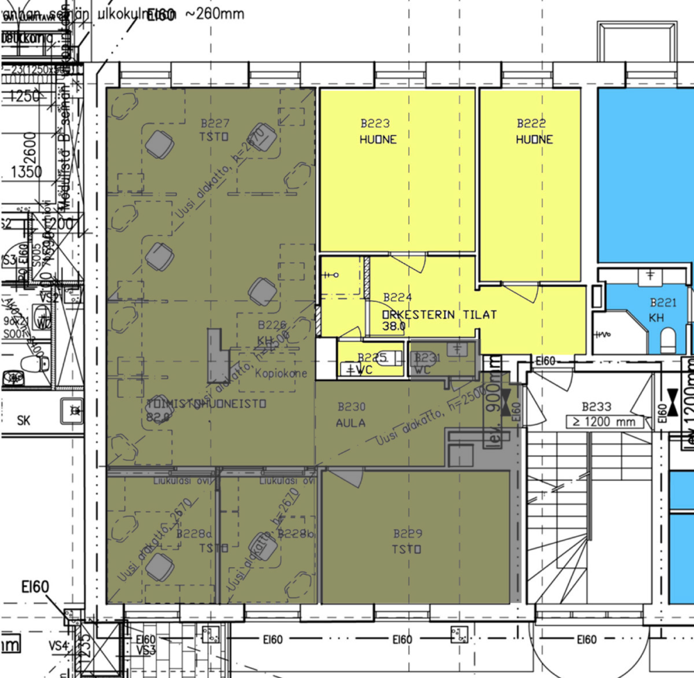
Kauppakatu 35, 38m² toimistotilaa
Toimistotilaksi sopiva huoneisto, 38m2 (pohjakuvassa merkitty keltaisella). Aula, minikeittiö, wc-tilat ja kaksi huonetta. Käynti Kauppakeskus Tawastin Versonraitilta. Ikkunat Kauppalaiskujalle, josta sisäänkäynti 24/7 porrashuoneen kautta. Lisäksi sähkö, vesi ja mahdollinen markkinointimaksu.





